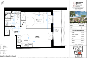
Visite virtuelle d’un T2 à la Résidence Séniors Foucaud
Grande chambre avec placard
Salle de bain indépendante, complètement équipée,
Cuisine équipée, salon , salle à manger,
Rangements placards dans l’entrée
Terrasses, vue jardin.





Tous les logements sont différents, notre résidence a été réalisée dans une bâtisse gaillacoise,
Isolations et chauffages très performants et économique.
Ascenseurs et escaliers pour les appartements à l’étage.
Pour retrouver l’ensemble des services et avantages, n’hésitez pas à nous contacter, à parcourir nos pages et articles , et nous rendre visite.
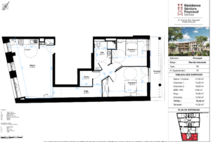
Actuellement T2, comme celui ci, et T3 libres.
Notre T3 disponible. Photos dans un article précédent, vidéos sur Instagram, et sur demande.
Commentaires récents